г. Челябинск, ул. Лесопарковая, д. 6, офис 303
+7 (351) 637-99-70
пн-пт: с 9:30 до 18:00
О компании
Проекты домов
Выполненные работы
Проектирование
Контакты
О НАС
ПРОЕКТЫ
РАБОТЫ
КОНТАКТЫ
Главная
→
Проекты домов
→
Дома из газоблока
→
Проект ГБ106
ПРОЕКТ ГБ106
ПРОЕКТ ГБ106
ПРОЕКТ ГБ106
Error get alias
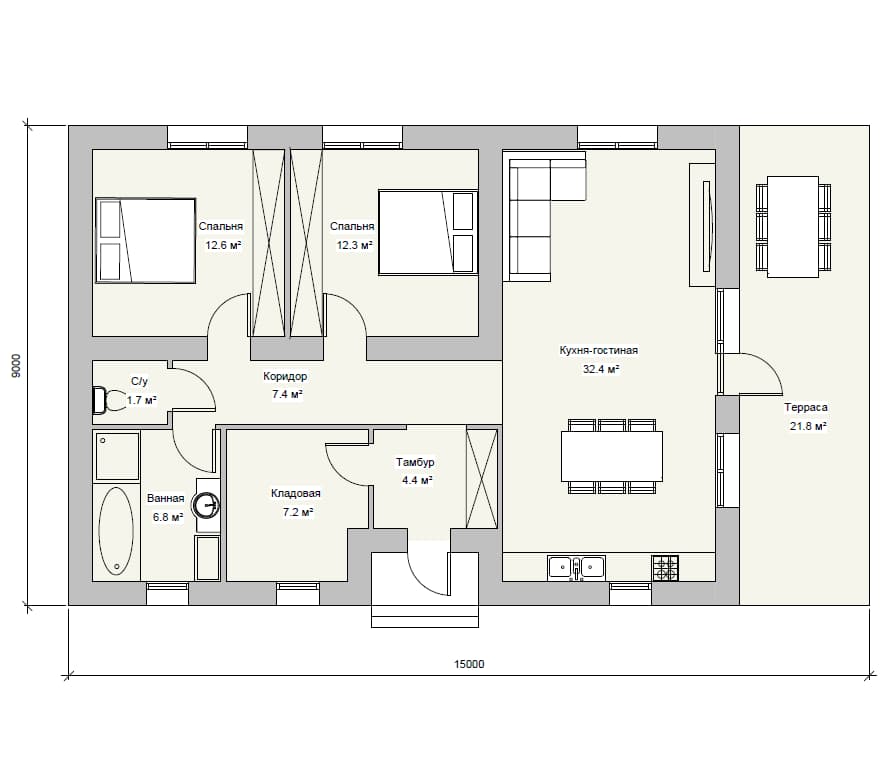
ОДНОЭТАЖНЫЙ ДОМ ИЗ газоблока 106М²
ПРОЕКТ ГБ106
При строительстве дома предлагаем использовать керамоблок 380мм
общая площадь; 106м² жилая площадь; 100м² габариты; 9*15 м этажей; 1 количество комнат; 3 количество санузлов; 1 терасса; да балкон; нет помещение котельной; нет
Button
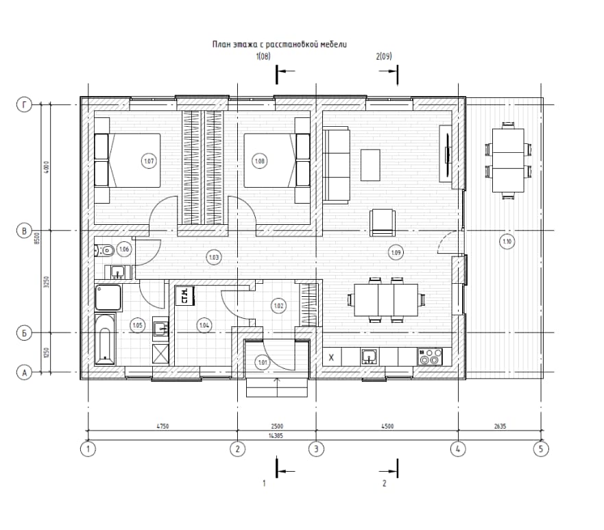
Планировка
Слева представлен вариант с расстановкой мебели и точными габаритами
Справа — с рекомендованной нашим дизайнером расстановкой.
Стоимость
Стоимость указана на конец 2024 года.
Обязательно уточняйте актуальность цен.
Теплый контур
фундамент
каркас дома из керамоблока 380мм
кровля утепленная с покрытием металлочерепицей
окна
двери
6 523 699
₽
₽
Проект в ипотеку
Стоимость отдельных видов работ
Фундамент
фундамент
бетонные полы
наружные инженерные сети
1 586 136
₽
₽
Коробка
кладка наружных стен из керамоблока 380мм
внутренних перегородок из керамоблока 120х180
2 259 458
₽
₽
Кровля
монтаж стропильной системы
монтаж кровли
597 900
₽
₽
Узнать актуальную цену
Узнать актуальную цену
Укажите номер телефона и ваше имя.
Это поможет нам оперативно связаться с вами и ответить на ваш вопрос.
Узнать актуальную цену
Другой вопрос по этому проекту
Отправить
Я даю согласие на обработку персональных данных и соглашаюсь c
политикой конфиденциальности
.